Кухонная вытяжка Korting KHC 6648 RGB
Описание
Кухонная вытяжка Korting KHC 6648 RGB
Характеристики
Бренд
Korting
Максимальная производительность, м³/час
650
Количество скоростей
3
Элементы управления
кнопочное
Количество двигателей
1
Тип освещения
светодиодная лампа
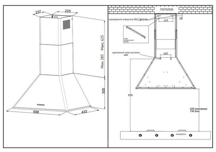
Ширина, см
59.8
Режим работы
отвод воздуха, циркуляция воздуха
Максимальный уровень шума, дБ
54
Фильтр
жировой
Материал корпуса
металл
Тип управления
механическое
Гарантийный срок
2 г.
Дополнительная информация
количество ламп освещения: 2, мощность каждой лампы: 5 Вт, угольный фильтр: KIT 0277 (приобретается отдельно)
Особенности конструкции
антивозвратный клапан
Ширина для встраивания (см)
59,8
Установка
купольная
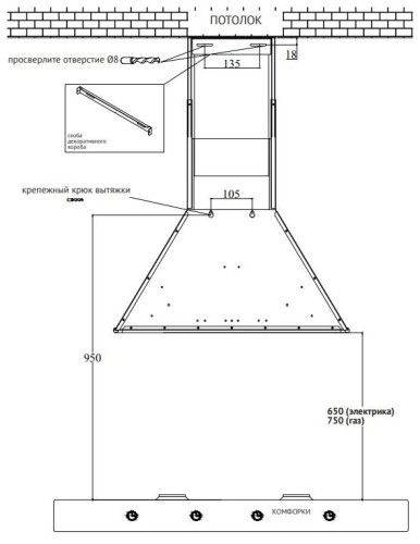
Габариты (ШхВхГ)
59.8x62.5x43.2
Вес, кг
9.6
Высота, см
62.5
Глубина, см
43.2
Отзывы












