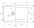
Кухонная мойка Zigmund & Shtain Rechteck 775 каменная соль
Мойки из искусственного гранита Zigmund Shtain ничем не уступают по своим характеристикам аналогичным мойкам из Италии и Германии. Благодаря качественному сырью и современным технологиям, мойки Zigmund Shtain устойчивы к воздействию пищевых кислот и красителей, не подвержены влиянию ультрафиолета и коррозии, а так же легко сохраняют свою структуру и цвет при перепадах температур. Благодаря своим антибактериальным свойствам мойки Zigmund Shtain активно препятствуют развитию грибков и бактерий на поверхности. Мойки безопасны в использовании, так как не содержат вредных примесей и безопасны при монтаже. Уход за этими мойками чрезвычайно прост: после использования легко моются обычным мыльным раствором. Технические характеристики * Бренд: Zigmund Shtain (Турция) * Страна: Россия * Материал: искусственный гранит * Цвет: серый (каменная соль) * Комплект поставки: мойка, крепёж, инструкция * Отверстие под смеситель: намечено 2 * Отверстие для перелива: есть * Срок эксплуатации: 25 лет * Вес: 19 кг * Гарантия: 3 года








