Газовая варочная панель Hansa BHGS611839
Описание
Газовая поверхность Hansa выполнена в оригинальном стиле, сочетая в себе стильный дизайн и практичность в использовании. Прибор оснащен 4 зонами нагрева, гармонично расположенных для вашего удобства во время готовки. Решетки поверхности изготовлены из чугуна, прочного материала, который также легок в уходе. Улучшенная WOK конфорка порадует увеличенной мощностью нагрева.
Характеристики
Бренд
Hansa
Тип панели
газовая
Управление со смартфона
нет
Материал панели
эмаль
Переключатели
поворотные
Электроподжиг
да
Тип электроподжига
автоматический
Газ-контроль конфорок
да
Конфорок газовых
4
Чугунные решетки
да
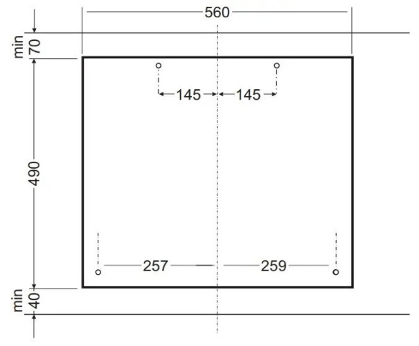
Ширина для встраивания (см)
56
Глубина для встраивания (см)
49
Ширина, см
59
Глубина, см
52
Высота, см
5
Цвет
черный
Вес, кг
11
Отзывы












