Газовая варочная панель Hansa BHGI 65010
Описание
Газовая варочная поверхность Hansa BHGI65010 изящно впишется в интерьер любой кухни. Модель оснащена газ-контролем и электроподжигом конфорок.
Характеристики
Бренд
Hansa
Тип панели
газовая
Управление со смартфона
нет
Материал панели
нержавеющая сталь
Переключатели
поворотные
Электроподжиг
да
Тип электроподжига
автоматический
Газ-контроль конфорок
да
Конфорок газовых
4
Чугунные решетки
да
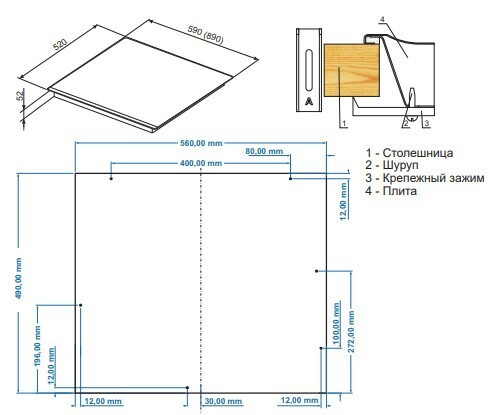
Ширина для встраивания (см)
56
Глубина для встраивания (см)
49
Ширина, см
59
Глубина, см
52
Высота, см
5.2
Цвет
серебристый
Отзывы






