Электрический духовой шкаф MAUNFELD EOEC.564TW
Описание
Электрический духовой шкаф MAUNFELD EOEC.564TW
Характеристики
Бренд
Maunfeld
Переключатели
сенсорные
Установка
независимая
Безопасность
защитное отключение, система защиты от детей
Тип духовки
электрическая
Объем духовки, л
56
Гриль
да
Тип гриля
электрический
Конвекция в духовке
да
Функция СВЧ
нет
Сенсорный дисплей
есть
Дверца духовки
откидная
Режимы нагрева
большой гриль, конвекция
Очистка духовки
гидролизная
Особенности конструкции
дисплей, подсветка камеры, часы, эмаль легкой чистки
Подробная комплектация
хромированная решетка, противень для выпечки, прихват и инструкция на русском языке
Число автоматических программ
5
Класс энергопотребления
A
Число стекол дверцы духовки
два
Максимальная температура, °c
250
Мощность подключения
2,3
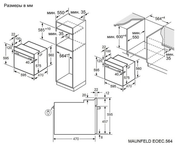
Ширина, см
59.5
Глубина, см
49.2
Высота, см
59.5
Габариты (ШхВхГ)
59.5х59.5х49.2
Отзывы
























